




Двері для холодильних і морозильних камер Стандарт.
Двері для холодильних і морозильних камер Стандарт.
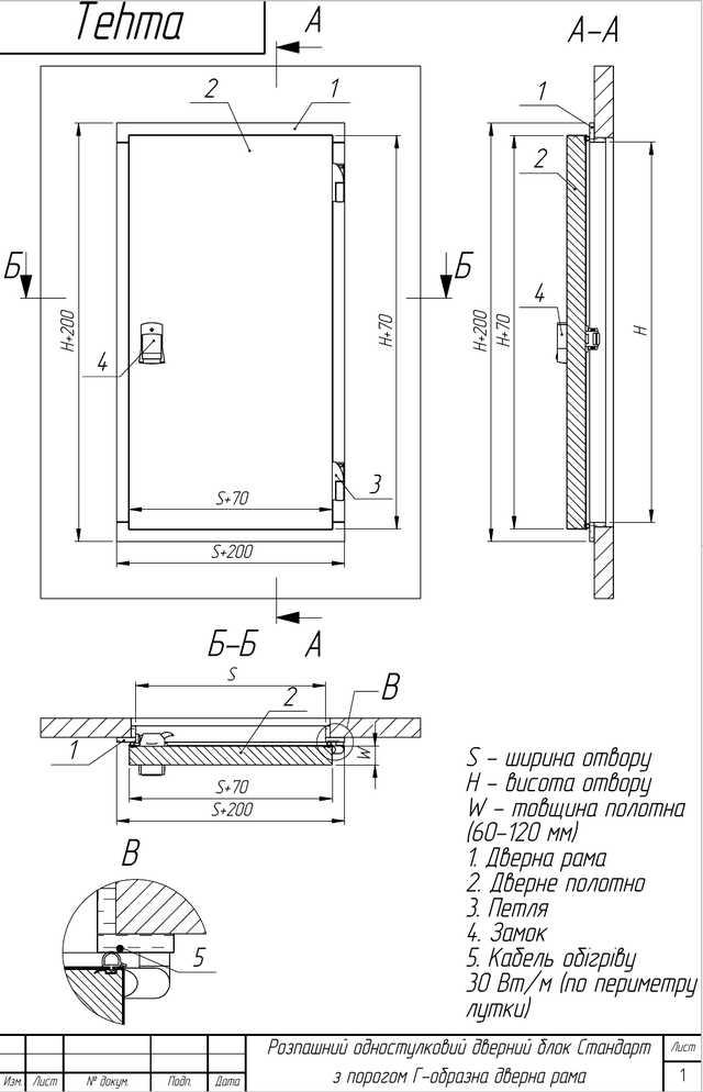
Двостулкові одностулкові двері для холодильних і морозильних камер серії Стандарт виготовляються по індивідуальним умовам застосування та розмірів. Дверне полотно сформоване методом згинання оцинкованого аркуша з поліестерним антикорозійним покриттям у захисній плівці. Внутрішнім наповнювачем дверного полотна є пінополіуретан (ППУ) щільністю 40-45 кг/м3. Ширина дверного полотна може бути від 500 мм до 1600 мм, а висота від 1600 мм до 3000 мм. Суцільнолита конструкція та застосування еластичних холодостійких гумових ущільнювачів забезпечують герметичну та міцну конструкцію дверей, що виключає мости холоду та економію електроенергії під час експлуатації холодильних приміщень.
Залежно від умов експлуатації дверцят бувають:
1. Середньотемпературні двері:
- товщина дверного полотна Т = 60 мм. Застосовуються в приміщеннях із підтримуваною температурою 0.+55 °C
- товщина дверного полотна Т=80 мм. Застосовуються в приміщеннях із підтримуваною температурою 0.+55 °C
2. Низькотемпературні двері:
- товщина дверного полотна Т=80 мм. Застосовуються в приміщеннях із підтримуваною температурою 0.-15С
- товщина дверного полотна Т=100 мм. Застосовуються в приміщеннях із підтримуваною температурою -15.-20С
- товщина дверного полотна Т=120 мм. Застосовуються в приміщеннях із підтримуваною температурою -20..-25С
Низькотемпературні двері укомплектовані підігрівальним кабелем на 220 В для запобігання примерзанню ущільнювача дверей до найдвернішого отвору.
- праве або ліве відкривання
- порожеві (60 мм, 80 мм, 100 мм) або безпорожеві з пластиною 15 мм
- накладні або Г-подібні рами
- одностулкові або двостулкові
Дверна рама виготовлена з вологостійкої фанери й облицьована оцинкованою сталевою жерсткою з полімерним антикорозійним покриттям. На дверних рамах встановлені регульовані в 3 осях петлі з мікроліфтом.




Фурнітура на холодильних дверях від світових виробників


Рисунок двостулкових холодильних дверних блоків серії Стандарт:

У нашому інтернет-магазині Ви можете придбати найцікавіші пропозиції на вигідних умовах за доступними цінами:
| Основні | |
|---|---|
| Виробник | Tehma |
| Країна виробник | Україна |
| Сфера використання | HoReCa, Fast-food, Торгові магазини |
| Гарантійний термін | 12 міс |
| Користувальницькі характеристики | |
| Максимальна підтримувана температура | 55 |
- Ціна: від 14 500 ₴






